

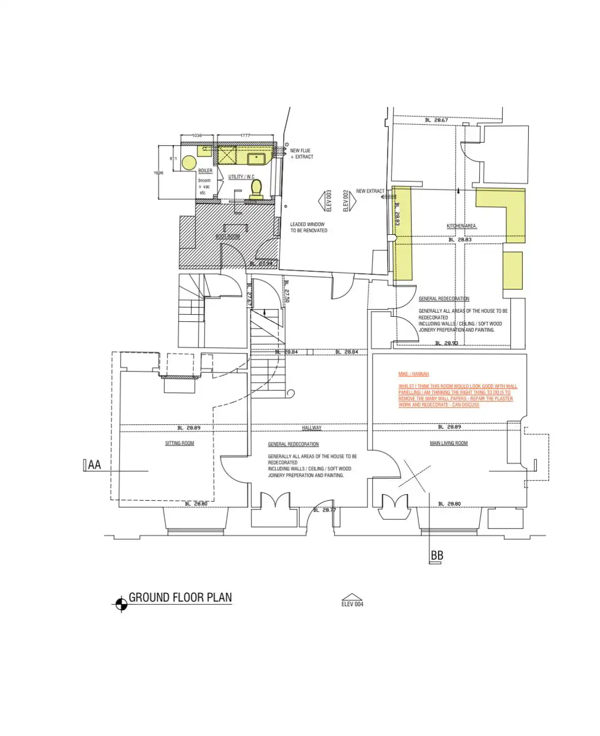
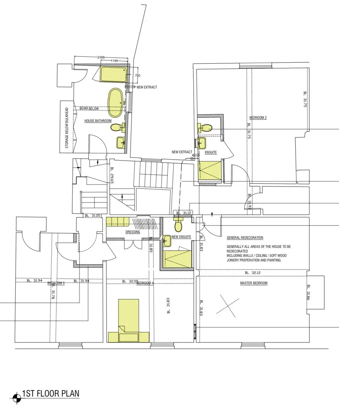
On this project we were working on a grade 1 building. Phase 1 was to install the new P+H system and create a new bathroom and we also created a small WC area as you can see in the drawings.



Phase 3 we done the outside work which was landscaping laying the slabs down to create a patio as fixing up the old gate and redoing some brickwork. We also did some works to the flooring in the hallway as well as some bespoke carpentry to hide some pipework and clad some support pillars.



These pictures show the works done installing Slip Bricks on the existing Fireplace












